Leave a Message

Thank you for your message. We will be in touch with you shortly.

Explore Our Properties

Property Description

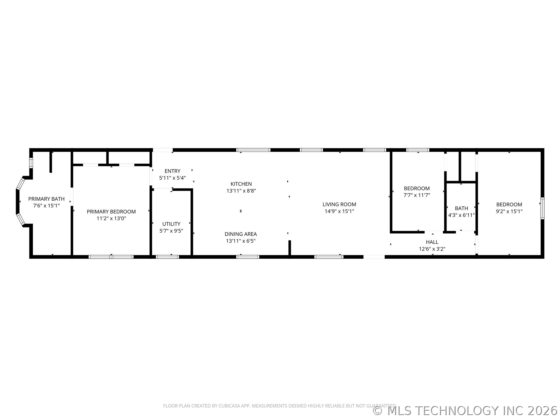
Well maintained 76' x 16' manufactured home offering 3 bedrooms and 2 bathrooms on 4.33 private acres. This property provides a quiet and secluded setting with mature trees, a small pond, and cross-fenced acreage suitable for livestock or agricultural use. The property features a fully equipped 40' x 36' climate controlled grow facility, ideal for controlled environment cultivation or other specialized uses, as well as a 10' x 30' loafing shed.
Enjoy peaceful country living with plenty of space and privacy, while still being just a short drive from downtown Tulsa, shopping, dining, and amenities! Come take a look

Overview

Property Status
Pending
Lot Size
4.33 Acres
MLS ID
2607999
Property Type
Manufactured-Mobile
Year Built
2001

Features & Amenities

Total Area
1,280 Sq.Ft.
Architecture Styles
Ranch
Stories
1
Water Source
Rural
Utilites
Cable Available, Electricity Available, Phone Available, Water Available
Pool
None
Roof
Asphalt, Fiberglass
Lot Features
Corner Lot, Farm, Mature Trees, Pond on Lot, Ranch
Heat Type
Central, Electric
Air Conditioning
Central Air
Laundry Room
Washer Hookup, Electric Dryer Hookup
Appliances
Dishwasher, Electric Water Heater, Oven, Range, Stove, Plumbed For Ice Maker
Other Interior Features
Laminate Counters, Vaulted Ceiling(s), Ceiling Fan(s), Electric Oven Connection
Sewer
Aerobic Septic
Substructure
Crawlspace, Permanent, Tie Down
Security Features
No Safety Shelter, Smoke Detector(s)
Other Exterior Features
Gravel Driveway, Rain Gutters
Elementary School
Skiatook
High School
Skiatook
School District
Skiatook - Sch Dist (7)
Sales Price
$250,000
Real Estate Tax
$1,147/yr

Downloads

2009 E 168th Street N

Schedule a Tour

We would love to help you see this beautiful home! As a full-service brokerage, we can help you tour. Please submit an offer, and answer questions about the buying process.

Thank you

for your interest in 2009 E 168th Street N, Skiatook, OK 74070

2009 E 168th Street N
Navigate

Mortgage Calculator

Estimate your monthly mortgage payment, including the principal and interest, property taxes, and HOA. Adjust the values to generate a more accurate rate.
$0,000 Your Payment 20 15 65
$0,000 Your Payment

I'm Interested In

2009 E 168th Street N

or
  • CallMichael Jennings

    License #178347

    (918) 899-4361
  • Featured Properties

    • 4717 S Atlanta Place For Sale

      $1,595,000

      4717 S Atlanta Place, Tulsa, OK 74105

      • 5 Beds
      • 7 Baths
      • 5,741 Sq.Ft.
    • 4607 S Retana Place Pending

      $699,000

      4607 S Retana Place, Broken Arrow, OK 74011

      • 4 Beds
      • 5 Baths
      • 3,850 Sq.Ft.
    • 2509 E Northampton Street For Sale

      $499,900

      2509 E Northampton Street, Broken Arrow, OK 74014

      • 4 Beds
      • 4 Baths
      • 3,156 Sq.Ft.
    • 8442 Spring Creek Court Pending

      $405,900

      8442 Spring Creek Court, Claremore, OK 74019

      • 4 Beds
      • 3 Baths
      • 2,553 Sq.Ft.
    • 22217 E 63rd Street S Pending

      $380,000

      22217 E 63rd Street S, Broken Arrow, OK 74014

      • 4 Beds
      • 3 Baths
      • 2,002 Sq.Ft.
    • 7417 E 126th Court S Pending

      $365,000

      7417 E 126th Court S, Bixby, OK 74008

      • 3 Beds
      • 3 Baths
      • 1,957 Sq.Ft.
    • 8512 E 121st Street S For Sale

      $330,000

      8512 E 121st Street S, Bixby, OK 74008

      • 4 Beds
      • 2 Baths
      • 1,961 Sq.Ft.
    • 4917 S 190th East Avenue W Pending

      $294,000

      4917 S 190th East Avenue, Tulsa, OK 74134

      • 3 Beds
      • 2 Baths
      • 1,915 Sq.Ft.
    • 2652 W Galveston Street Pending

      $260,000

      2652 W Galveston Street, Broken Arrow, OK 74012

      • 3 Beds
      • 2 Baths
      • 1,697 Sq.Ft.
    • 2009 E 168th Street N Pending

      $250,000

      2009 E 168th Street N, Skiatook, OK 74070

      • 3 Beds
      • 2 Baths
      • 1,280 Sq.Ft.
    • 718 N 12th Street For Sale

      $250,000

      718 N 12th Street, Sapulpa, OK 74066

      • 3 Beds
      • 2 Baths
    • 6513 S 29TH W PL Place For Sale

      $245,000

      6513 S 29TH W PL Place, Tulsa, OK 74132

      • 3 Beds
      • 2 Baths
      • 1,700 Sq.Ft.
    • 1527 E 50th Street Pending

      $239,900

      1527 E 50th Street, Tulsa, OK 74105

      • 3 Beds
      • 2 Baths
      • 1,182 Sq.Ft.
    • 4640 S 30th West Avenue For Sale

      $130,000

      4640 S 30th West Avenue, Tulsa, OK 74107

      • 2 Beds
      • 2 Baths
      • 1,024 Sq.Ft.
    • 4208 NE Michigan Street For Sale

      $68,000

      4208 NE Michigan Street, Bartlesville, OK 74006

      • 3 Beds
      • 1 Bath
      • 1,016 Sq.Ft.
    • 116 N Wyandotte Avenue For Sale

      $22,500

      116 N Wyandotte Avenue, Dewey, OK 74029

      • 4 Beds
      • 2 Baths
      • 1,671 Sq.Ft.
    • Commodore For Sale

      $15,000

      Commodore, Checotah, OK 74426

    View All Properties

    Follow Us On Instagram